Standard module series 40
MODULE 1
- Habitat all year round
- Total area 40m2
- Number of bedrooms 2
- Living room area 20m2
- Standard terrace 15 m2
- Entrance from the front of the module
- Floor U-value: 0,158 W/(m2K)
- Exterior wall U-value: 0,176 W/(m2K)
- Roof U-value: 0,178 W/(m2K)
MODULE 2
- Habitat all year round
- Total area 40m2
- Number of bedrooms 2
- Living room area 20m2
- Standard terrace 15 m2
- Entrance from the front of the module
- Floor U-value: 0,158 W/(m2K)
- Exterior wall U-value: 0,176 W/(m2K)
- Roof U-value: 0,178 W/(m2K)
- SAUNA
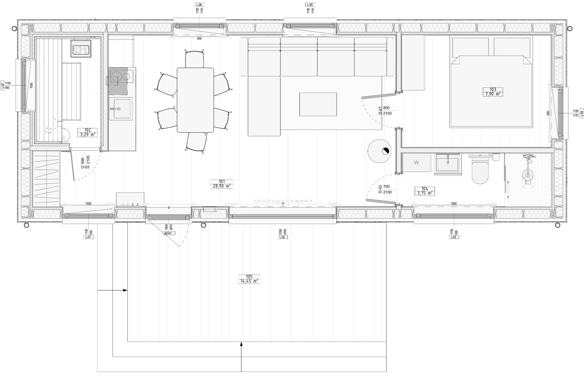
MODULE 3
- Habitat all year round
- Total area 40m2
- Number of bedrooms 1
- Living room area 29m2
- Standard terrace 15 m2
- Entrance from the front of the module
- Floor U-value: 0,158 W/(m2K)
- Exterior wall U-value: 0,176 W/(m2K)
- Roof U-value: 0,178 W/(m2K)
- SAUNA
MODULE 4 (office)
- Habitat all year round
- Total area 46m2
- Open office room 33m2
- Meeting room 9m2
- Standard terrace 15 m2
- Entrance from the front of the module
- Floor U-value: 0,158 W/(m2K)
- Exterior wall U-value: 0,176 W/(m2K)
- Roof U-value: 0,178 W/(m2K)
MODULE 5
- Habitat all year round
- Total area 40m2
- Number of bedrooms 1
- Living room area 23m2
- Standard terrace 25 m2
- Entrance from the side of the module
- Floor U-value: 0,158 W/(m2K)
- Exterior wall U-value: 0,176 W/(m2K)
- Roof U-value: 0,178 W/(m2K)
